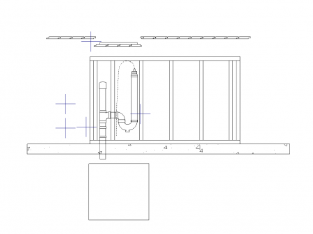
GeneDavis Posted Saturday at 05:46 PM Share Posted Saturday at 05:46 PM I am drawing a CAD detail on a CAD detail page (CAD > Cad Detail Management > New) and have used the line tool, rectangle tool, spline tool, and made a few point to point moves of rectangles as I blocked everything in. Look at this. See the point markers? I have deleted the five points once, did a screen move, they came on again, and I deleted them again. Now they have re-appeared. Why this behavior? Link to comment Share on other sites More sharing options...
robdyck Posted Saturday at 06:19 PM Share Posted Saturday at 06:19 PM If I remember correctly, these point markers are remnants from temporary dimensions. A bug if I'm not mistaken...obviously they should not be generated and remain because of temporary dimensions. It is annoying. Link to comment Share on other sites More sharing options...
Kbird1 Posted Sunday at 11:22 PM Share Posted Sunday at 11:22 PM Rob is likely correct if you use the Point to Point Dimension Tool, it will leave point makers if the Tool doesn't find something else to snap too, it snaps to the dimension grid I believe in that case, you can move the point to an object/cad line though too. The point markers can be set to a much smaller size if needed in the defaults for the View being used. Do you have dimensions turned on in the view? you should be able to delete the Dim String which should delete the point Marker too. off course you may have found a bug of some kind too, if using X17 report it.... if it not the Pt to Pt Tool issue above. M. Link to comment Share on other sites More sharing options...
Recommended Posts
Please sign in to comment
You will be able to leave a comment after signing in
Sign In Now