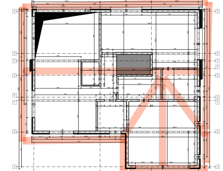
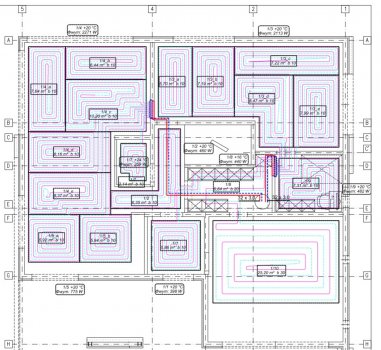
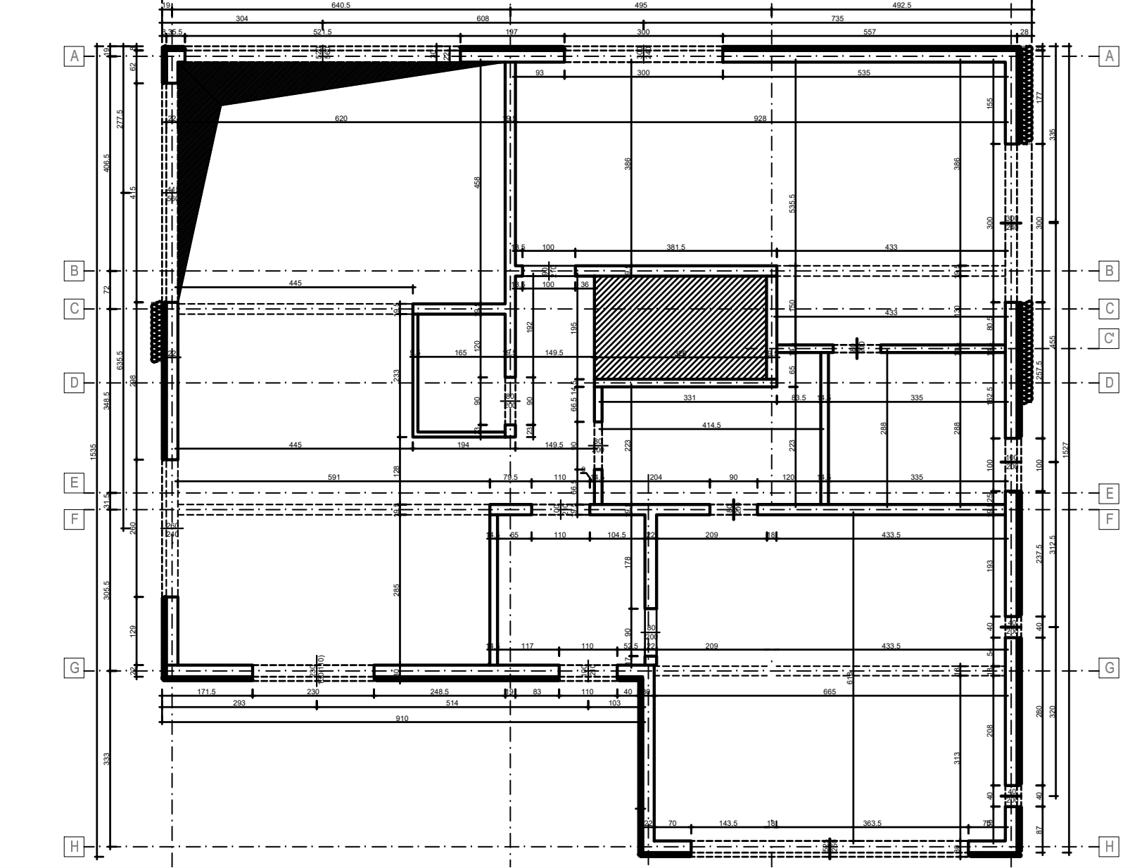
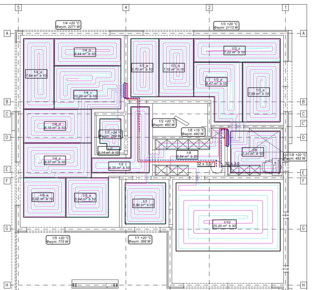
MrtnBuilder Posted 6 hours ago Share Posted 6 hours ago Hi, According to the administrative decision, we must have a pitched roof with a slope of between 30 and 45 degrees. The roof surfaces can have different slopes; it's important that they are within the 30-45 degree range. We currently have a foundation slab, along with the underfloor heating system and the sewage system. I've marked the sewage outlets with red circles on the ground floor plan. The attached document also includes the floor system design. We can only move the ground floor walls so as not to encroach on the underfloor heating system. As I mentioned, the problem arises with the roof. The building is rectangular in shape with an attached garage. Due to the administrative decision, the building's height, measured from the entrance to the roof ridge, including the roof layers, cannot exceed 950 centimeters. We planned a hipped roof on the building, but it's not possible. Here's why: The building has two floors, each 290 centimeters high. With a total height of 950 centimeters, we're left with 370 centimeters for the roof, including the ceiling between the floors. (290 + 290 = 580) (950 - 580 = 370) The building has a front elevation of 1611 centimeters and a side elevation of 1186 centimeters. We can't create a hipped roof on the building because the facades are too long and the roof is too high. The only solution I came up with was a multi-pitched roof. Unfortunately, I'm not an expert in this field, so I have no idea what such a roof should look like if the entire building, including the roof, was below 950 centimeters. The ground floor drawing shows walls. The elements drawn with dashed lines are beams that could also support the roof. We plan to build a roof using prefabricated trusses. Do you have any ideas on how to solve this problem? Thank you for your help. Link to comment Share on other sites More sharing options...
JiAngelo Posted 3 hours ago Share Posted 3 hours ago (edited) Where's the problem? 30-45 degrees equals 7/12 to 12/12. Side elevation 1186 ÷ 2 = 593 run And 370 rise ÷ 593 run = 7-1/2 pitch. A 7/12 pitch = 342.37 rise. This gives you room for lumber and shingles. Try 7/12 front to back and make the front gable 7/12 as well initially. Then increase the front gable pitch without the ridge exceeding the 7/12 ridge. Here's an image in case the above isn't clear. A 7/12 all hipped roof should work fine too. Girder over the heated floor areas so that all trusses bear on ex. outside foundation walls. Edited 3 hours ago by JiAngelo Errors Link to comment Share on other sites More sharing options...
MrtnBuilder Posted 2 hours ago Author Share Posted 2 hours ago (edited) Thank you very much for your answer. With a single hipped roof, as you wrote, the height will be 343 centimeters. Assuming the rooms are 290 centimeters each: (290 + 290 + 342) = 922 centimeters. Assuming we have 922 centimeters, it will be difficult to fit the ceiling between the floors and the roof finishing layers. The ceiling between the floors will be approximately 40 centimeters (a wooden ceiling with acoustic insulation layers and underfloor heating on the first floor). In this situation, after adding 40 centimeters, we have a total of 962 centimeters without the roof finishing layers. Unless I'm miscalculating and misunderstanding something? In this situation, unfortunately, the roof would be 30 centimeters higher than the administrative requirements, which state that the maximum height of the building cannot exceed 950 centimeters. Is there any way to divide the hipped roof into smaller sections, which would reduce the roof span and its height to the ridge? Thank you again for your help. Edited 2 hours ago by MrtnBuilder Link to comment Share on other sites More sharing options...
MrtnBuilder Posted 2 hours ago Author Share Posted 2 hours ago the height of the rooms is 290 centimeters because we intend to install a mechanical ventilation system and install beams in the suspended ceilings, after lowering 20 centimeters for the installation, there will be 270 centimeters of clear height in each room. Link to comment Share on other sites More sharing options...
Joe_Carrick Posted 2 hours ago Share Posted 2 hours ago In most jurisdictions the building height is calculated to the average roof height, not the ridge. Double check the local codes. I also note that 270 cm is approximately 9 ft. Do you really need that much ceiling ht for the entire floor area? Ducts can be run in just central room ceiling as well as in the attic, depending on the design. Link to comment Share on other sites More sharing options...
MrtnBuilder Posted 1 hour ago Author Share Posted 1 hour ago 15 minutes ago, Joe_Carrick said: W większości jurysdykcji wysokość budynku oblicza się na podstawie średniej wysokości dachu, a nie kalenicy. Sprawdź dokładnie lokalne przepisy. Zauważam również, że 270 cm to około 9 stóp. Czy naprawdę potrzebujesz aż tyle sufitu na całą powierzchnię podłogi? Kanały wentylacyjne można poprowadzić zarówno w suficie centralnego pomieszczenia, jak i na poddaszu, w zależności od projektu. Unfortunately, in Poland, the building height is measured from the lowest point of the building entrance to the roof ridge, including the roof finishing layers. Regarding the roof height, assuming I'm 30-40 centimeters short, I would have to lower both rooms by 20 centimeters. Unfortunately, I don't know why, but I have a ceiling joist in every significant place where ventilation ducts could be passed through, so after talking to the contractors, they said I would need to lower the ceiling. It's also possible that sewage pipes would be required in some places in the ceiling, so the room height is such that we don't have to worry about the height of the building and the rooms. Regarding the sewage system, it's possible that a ceiling passage will be required because the design was changed after the sewage system and foundation slab were installed. Unfortunately, we had to terminate the contract with the company that was supposed to build the building due to constant delays. They then stole the money we paid for the materials and fled the construction site. We had to change the design to be able to financially continue the investment, hence the extra height in the rooms. Link to comment Share on other sites More sharing options...
Joe_Carrick Posted 1 hour ago Share Posted 1 hour ago Have you considered using open web floor joists so the utilities could be run thru? That might help.save 20 cm. It might also be possible to change the direction of floor framing in some areas to accommodate duct running between the joists. Link to comment Share on other sites More sharing options...
JiAngelo Posted 1 hour ago Share Posted 1 hour ago It appears the 950cm is to be measured from ground level outside the entrance, not the sill of the entrance itself. If that is true, what is the elevation difference between ground level and top of the first floor deck (entrance sill.)? Link to comment Share on other sites More sharing options...
MrtnBuilder Posted 1 hour ago Author Share Posted 1 hour ago (edited) 11 minutes ago, Joe_Carrick said: Czy rozważałeś zastosowanie belek stropowych z otwartym środnikiem, aby umożliwić poprowadzenie mediów? To mogłoby pomóc, oszczędzając 20 cm. Możliwe byłoby również zmienienie kierunku konstrukcji stropu w niektórych miejscach, aby umożliwić poprowadzenie kanałów między belkami. The plan I attached at the beginning included truss beams. Unfortunately, intermediate beams supporting the ceiling must run beneath these beams (these are the beams shown on the plan as dashed lines), so I'm not sure if it makes sense to do this, since I'll have to lower the ceiling anyway to accommodate the beams supporting the trusses. Another option was to place the supporting beams directly into the truss, but in that case, it would block the access to the utilities. I don't know what to do in this situation. After the company stole my money, I'm left to my own devices and don't know how to handle all this. I encounter problems with every solution. I'm starting to doubt whether this building can even be built given the 950-centimeter maximum height Edited 1 hour ago by MrtnBuilder Link to comment Share on other sites More sharing options...
MrtnBuilder Posted 57 minutes ago Author Share Posted 57 minutes ago 8 minutes ago, JiAngelo said: Wygląda na to, że 950 cm należy mierzyć od poziomu gruntu przed wejściem, a nie od progu samego wejścia. Jeśli to prawda, jaka jest różnica wysokości między poziomem gruntu a szczytem tarasu na pierwszym piętrze (progiem wejściowym)? That's exactly what they came up with, which isn't very smart because the foundation should be slightly higher. In my case, the ground is sandy, so it's only 10 centimeters lower than the entrance to the building, but there will also be a terrace on the ground, so the design shows that the ground is level with the entrance to the building, therefore the ground and the entrance to the building are at the same height. Link to comment Share on other sites More sharing options...
MrtnBuilder Posted 53 minutes ago Author Share Posted 53 minutes ago 2 hours ago, JiAngelo said: Where's the problem? 30-45 degrees equals 7/12 to 12/12. Side elevation 1186 ÷ 2 = 593 run And 370 rise ÷ 593 run = 7-1/2 pitch. A 7/12 pitch = 342.37 rise. This gives you room for lumber and shingles. Try 7/12 front to back and make the front gable 7/12 as well initially. Then increase the front gable pitch without the ridge exceeding the 7/12 ridge. Here's an image in case the above isn't clear. A 7/12 all hipped roof should work fine too. Girder over the heated floor areas so that all trusses bear on ex. outside foundation walls. In this difficult situation, is there any other option to divide this hipped roof into several smaller sections, which would allow for a lower height to the ridge? Unless dividing the roof would require the roof to be constructed individually, rather than using prefabricated trusses? In that case, I'm not sure it makes sense to do it at all, as the roof would be extremely expensive if the prefabricated trusses had to be abandoned Link to comment Share on other sites More sharing options...
JiAngelo Posted 7 minutes ago Share Posted 7 minutes ago I think Poland permits mansard roofs. I specified 2900mm for each floor, 400mm for the second deck and changed the roof pitch to 2 degrees at 9000mm. I added a decorative perimeter rail above the 9000mm point that still manages to be under 9500mm from the first floor deck. The roof itself allows grade to be 430mm below the front door and you will still meet the authority requirements. Link to comment Share on other sites More sharing options...
JKEdmo Posted 5 minutes ago Share Posted 5 minutes ago 6 hours ago, MrtnBuilder said: The only solution I came up with was a multi-pitched roof. Immediately thought of a mansard roof. I'd imagine there's precedent for it in Poland. Perhaps it can work in your case. Link to comment Share on other sites More sharing options...
Recommended Posts
Please sign in to comment
You will be able to leave a comment after signing in
Sign In Now