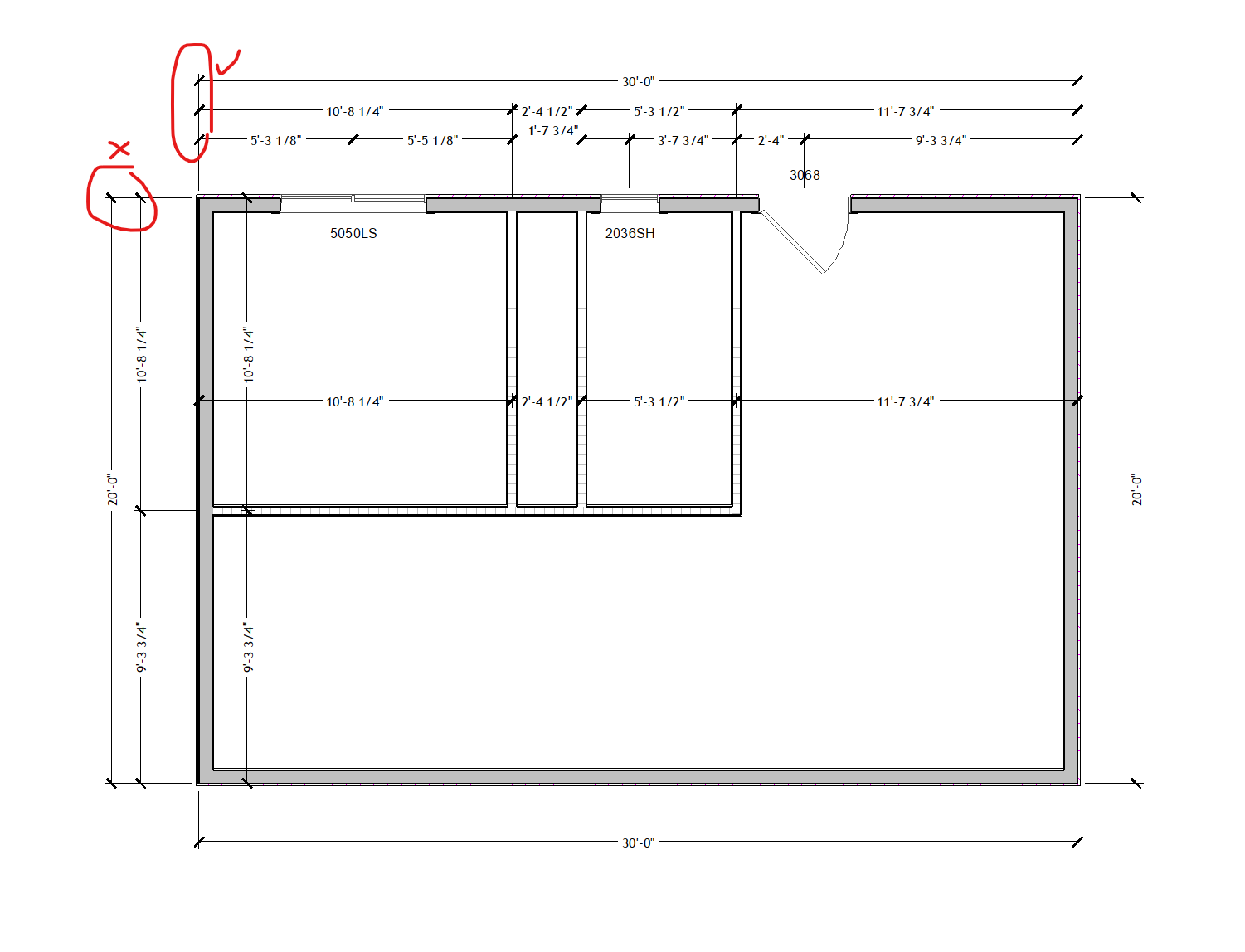
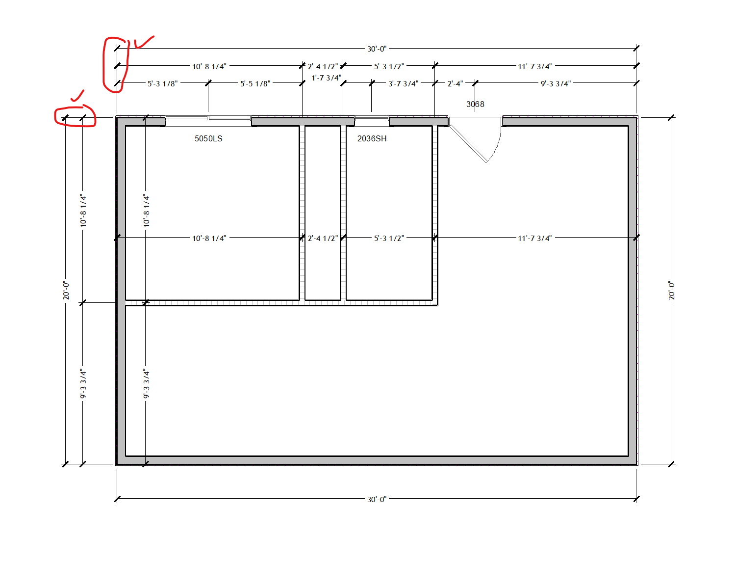
JonathanK Posted Friday at 03:52 PM Share Posted Friday at 03:52 PM (edited) Hello all, I've done a little digging, and can't find anything posted here on this. Wondering if there is a way to prevent the tick marks from rotating with the dimensions based on the dimension string running horizontal or vertical. See attached. Tick1 is the out of the box setting. Tick 2 is what I'm looking for. I want all the tick marks to be bottom left to top right. It's my old school drafter mentality coming out! Thanks! Edited Friday at 06:35 PM by JonathanK clarify the sentence. Link to comment Share on other sites More sharing options...
PitMan71 Posted Friday at 04:31 PM Share Posted Friday at 04:31 PM How did you get it to work in the second photo? Link to comment Share on other sites More sharing options...
JonathanK Posted Friday at 04:36 PM Author Share Posted Friday at 04:36 PM Selected the appropriate dimension strings and changed the arrow type to the reversed direction. I was just hoping there was a buried dialog box or selection somewhere that you could check to "Not rotate arrow head with dimension string" or something like that Link to comment Share on other sites More sharing options...
Chrisb222 Posted Friday at 07:30 PM Share Posted Friday at 07:30 PM 2 hours ago, JonathanK said: Selected the appropriate dimension strings and changed the arrow type to the reversed direction. The easier way to do this, if you must, is to create a separate Dimension Default that has the opposite arrow type. Then place the Dimension Default Dropdown tool on your toolbar to make it easy to switch out between dimension defaults: Draw all your Type 1 dims, then switch to Type 2 and draw those. That is, if it's that important to you - at least this is easier than changing them after the fact. (This only applies to manually drawn dimensions, of course.) 1 Link to comment Share on other sites More sharing options...
PitMan71 Posted Friday at 09:56 PM Share Posted Friday at 09:56 PM 2 hours ago, Chrisb222 said: The easier way to do this, if you must, is to create a separate Dimension Default that has the opposite arrow type. Then place the Dimension Default Dropdown tool on your toolbar to make it easy to switch out between dimension defaults: Draw all your Type 1 dims, then switch to Type 2 and draw those. That is, if it's that important to you - at least this is easier than changing them after the fact. (This only applies to manually drawn dimensions, of course.) Great idea.... A downside would be that you couldn't completely benefit from auto dimensioning. Link to comment Share on other sites More sharing options...
PitMan71 Posted Friday at 09:57 PM Share Posted Friday at 09:57 PM The other option is therapy. 1 Link to comment Share on other sites More sharing options...
JonathanK Posted 5 hours ago Author Share Posted 5 hours ago So the short answer is that there is no easy check box to prevent arrows from rotating. Link to comment Share on other sites More sharing options...
Recommended Posts
Please sign in to comment
You will be able to leave a comment after signing in
Sign In Now