Brick Pier Foundation - Tips


PitMan71
 Share

Go to solution Solved by robdyck,

Recommended Posts

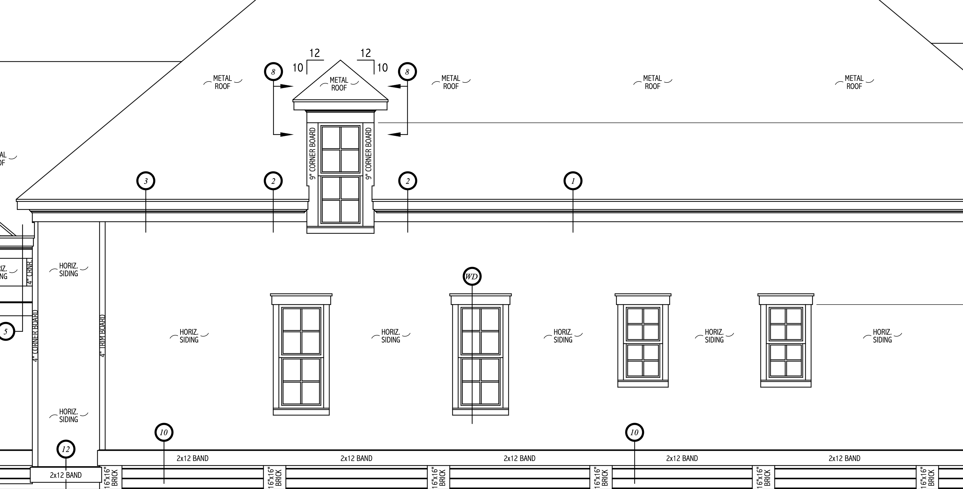
I have a project coming up that the foundation is brick piers as shown in the attached images. What is the best way to draw these the way they are shown here? I have looked at the foundation tool with piers but it centers them under the edge of the wall and it doesn't appear they can be moved. Anyway, I will probably be doing a few like this so I want to get it figured out. 

 

Thank in advance for tips on this.

 

 

290954454_Screenshot2025-10-08at5_11_29PM.thumb.png.b51f04d2788f412dc5263c6a5e6a2632.png219230908_Screenshot2025-10-08at5_11_56PM.thumb.png.da01e2b1d6b12996f5671be87633cfc6.png

Edited by PitMan71
Link to comment
Share on other sites

  • Solution
Posted (edited)

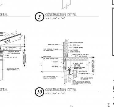
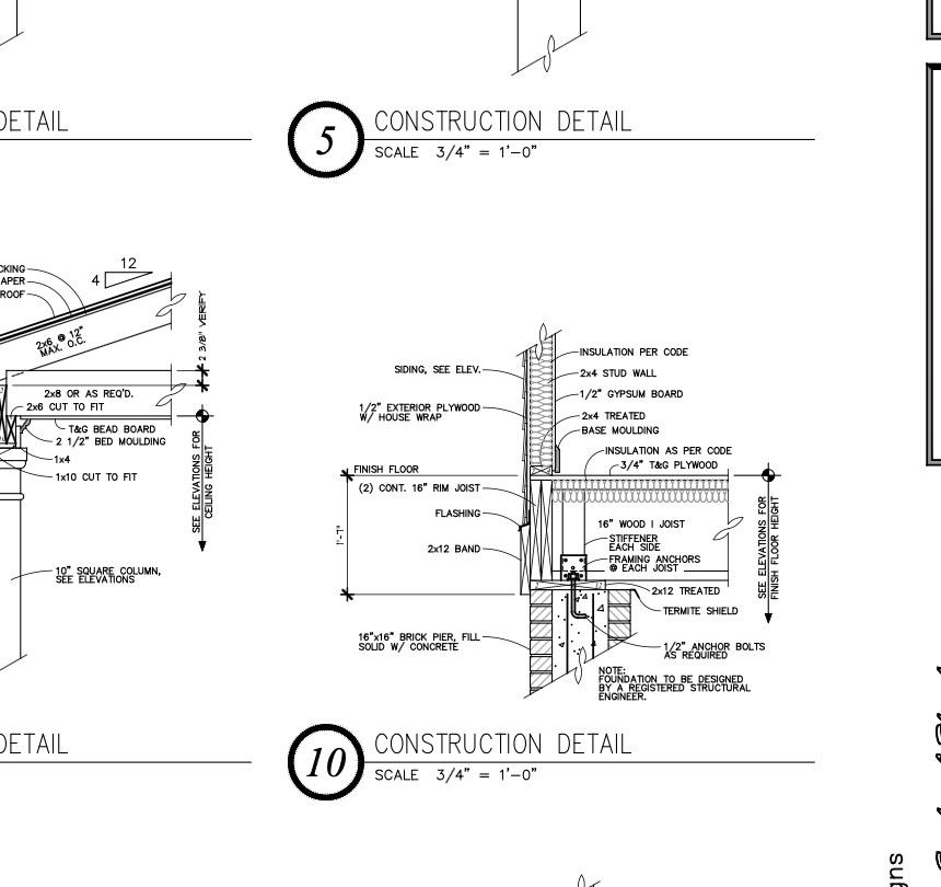
The actual wall type doesn't really matter when the foundation height is 0", but a 16" wide foundation wall gets the piers aligned correctly.

I 'painted' the piers instead of changing the default material for the foundation/slab.

The pier spacing I used is simply an example. Everything here is automatic.

image.thumb.png.f68020d42ca54b6831f00974cc83d9e0.png

image.thumb.png.a76db1af10ccc8cd3b0729d1c2ef3667.png

image.thumb.png.9af72b08ad843ebbe071a92b1fc123a2.png

Edited by robdyck
  • Like 1
Link to comment
Share on other sites

Please sign in to comment

You will be able to leave a comment after signing in



Sign In Now
 Share