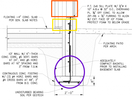
jgolden Posted January 9 Share Posted January 9 (edited) I'm trying to figure out how to properly construct a 3 section pony wall in Chief on a stepped foundation. ICF stem wall to slab (purple) ICF with 2x4 + 2x3 furred wall (yelllow) (hasn't been defined) double stud wall, 2x6 -> 2x4 -> 2x3 (orange) yelllow and orange are floor 0 green is floor 1 Cheers! Double stud wall: Edited January 9 by jgolden Link to comment Share on other sites More sharing options...
JiAngelo Posted January 9 Share Posted January 9 The orange needs to be floor1. It's room's floor supplied by level below. The yellow and blue are floor 0 with floor ~8" below stemwall. Step your blue as required. Link to comment Share on other sites More sharing options...
Renerabbitt Posted January 9 Share Posted January 9 2 hours ago, jgolden said: ICF stem wall to slab (purple) ICF with 2x4 + 2x3 furred wall (yelllow) (hasn't been defined) double stud wall, 2x6 -> 2x4 -> 2x3 (orange) This is a membership only video. I changed it to public for this thread but will change it back to membership after today. give it a watch, it explains a very simple process for this: Link to comment Share on other sites More sharing options...
jgolden Posted January 9 Author Share Posted January 9 Thank you. My basement is on floor 0. I'm assuming the reason the furred stem wall in Rabbitt's video doesn't have framing below the slab is it's monolithic? If I add furred framing to my stem wall it extends all the way down to the footer. Link to comment Share on other sites More sharing options...
Renerabbitt Posted January 9 Share Posted January 9 39 minutes ago, jgolden said: My basement is on floor 0 put it on floor 1 and it will make this process a lot easier and more dynamic, that way your stepping happens above your FF and makes use of a stem wall pony wall and your furring wall Link to comment Share on other sites More sharing options...
jgolden Posted January 10 Author Share Posted January 10 Derp! That finally clicked. Is there another way to modify my plan other than inserting a new floor above floor 0 then manipulating the terrain Surface at contour? If not, it's going to be a bit of an effort to shift all manually modified roof, framing, etc. Link to comment Share on other sites More sharing options...
Recommended Posts
Please sign in to comment
You will be able to leave a comment after signing in
Sign In Now