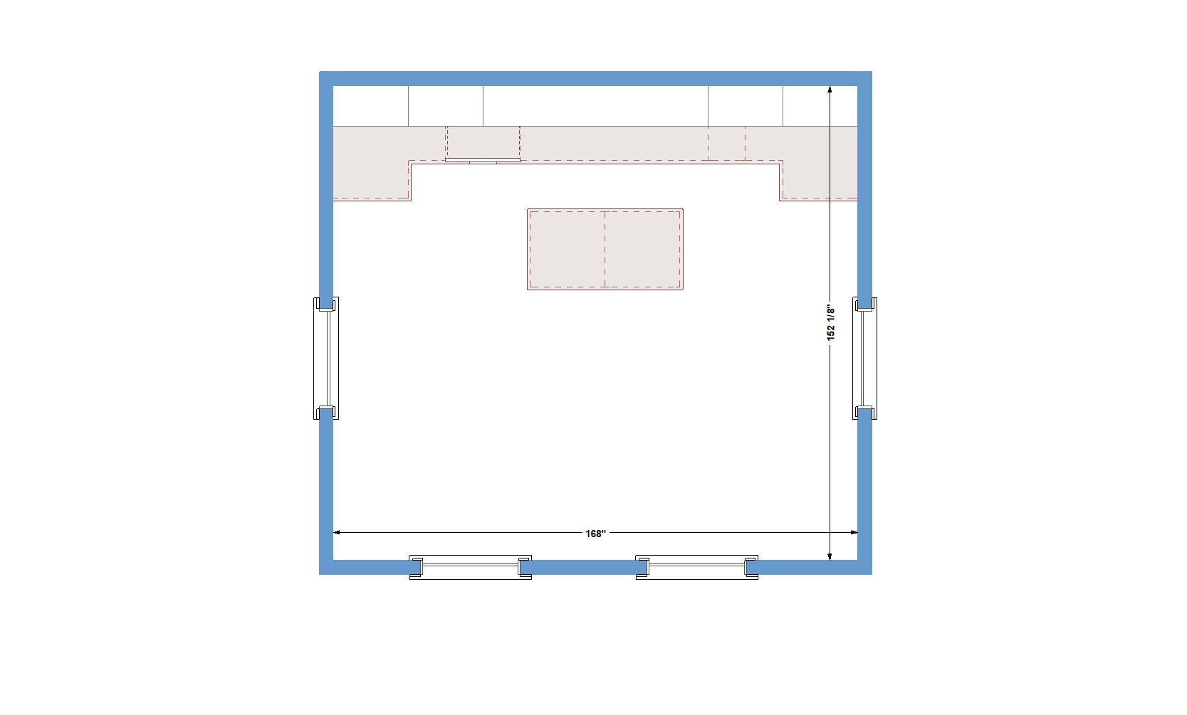
Nate_M Posted December 15, 2025 Share Posted December 15, 2025 I'm not sure if this is a bug in X17 or if I'm just not doing something right. I like to have an interior plan that shows two lines of dimensions. The first line shows a dimension going from casing to casing on openings. The second line shows an overall dimension. The issue I am having is that for some reason when I set the auto room dimension to auto dimension casings it doesn't work when the dimensions are oriented on the inside of the room, but it does work when the dimensions are set to display outside the room. I attached two photos showing what I'm talking about. Has anyone else run into this issue? Can you help me figure out what I'm doing wrong? The only setting I changed between these two photos is that the dimensions are inside the room versus outside the room. Thanks in advance! Link to comment Share on other sites More sharing options...
Chrisb222 Posted December 15, 2025 Share Posted December 15, 2025 24 minutes ago, Nate_M said: Has anyone else run into this issue? Works for me using a quick simple test on an OOB X17 Template plan: 24 minutes ago, Nate_M said: Can you help me figure out what I'm doing wrong? Probably, if we had the plan file. Otherwise we're just guessing... Link to comment Share on other sites More sharing options...
Nate_M Posted December 16, 2025 Author Share Posted December 16, 2025 Here's the plan file. It's what I use as my template. Curious if the issue persists on someone else's computer. Jim Martin Design_Half Inch Template.plan Link to comment Share on other sites More sharing options...
Chrisb222 Posted December 16, 2025 Share Posted December 16, 2025 45 minutes ago, Nate_M said: Curious if the issue persists on someone else's computer. You need to set Casing as a locate object under the Locate Auto Room settings: ...then it works: Link to comment Share on other sites More sharing options...
Nate_M Posted December 16, 2025 Author Share Posted December 16, 2025 23 minutes ago, Chrisb222 said: You need to set Casing as a locate object under the Locate Auto Room settings: ...then it works: I have it set to casing on multiple dimension defaults, my issue is that it is not showing that way on my plans. I have had it set that way for my template file in X16, but now it doesn't seem to work in X17. That's why I'm wondering if there's a bug. Link to comment Share on other sites More sharing options...
Chrisb222 Posted December 16, 2025 Share Posted December 16, 2025 Huh, that's weird. Your file that I downloaded had Casing checked but it was dimmed because Openings was unchecked: When I checked Openings, it worked on my computer so I don't think it's a software bug. 1 Link to comment Share on other sites More sharing options...
Nate_M Posted December 16, 2025 Author Share Posted December 16, 2025 3 hours ago, Chrisb222 said: Huh, that's weird. Your file that I downloaded had Casing checked but it was dimmed because Openings was unchecked: When I checked Openings, it worked on my computer so I don't think it's a software bug. I made some further updates to my template file and exported it as the new project format in X17. I'm still having the issue on my end. Wondering if anyone can setup auto room dimensions to locate casings on openings on their end? Test Project.caproj Link to comment Share on other sites More sharing options...
Chrisb222 Posted December 16, 2025 Share Posted December 16, 2025 2 hours ago, Nate_M said: I'm still having the issue on my end. It took a little digging but I think I found the problem. Locate Auto Room derives some of its settings from another panel in the dialog, namely Setup Automatic. I changed your Setup Automatic settings back to the OOB settings and Auto Room Dimension now locates casings. It seems your Line Separation and First Line Offset settings were not compatible with displaying both dimension lines, so one was omitted. See the OOB settings: Link to comment Share on other sites More sharing options...
Nate_M Posted December 17, 2025 Author Share Posted December 17, 2025 18 hours ago, Chrisb222 said: It took a little digging but I think I found the problem. Locate Auto Room derives some of its settings from another panel in the dialog, namely Setup Automatic. I changed your Setup Automatic settings back to the OOB settings and Auto Room Dimension now locates casings. It seems your Line Separation and First Line Offset settings were not compatible with displaying both dimension lines, so one was omitted. See the OOB settings: Yes, I think you figured it out. I spent my day going in circles trying to nail something down. In the meantime I submitted it as an issue to Chief Support. Shout out to Brian who got back to me. In the Setup Automatic settings I had Offset from Wall set to "Surface". That causes the issue. When I set it back to "Center" auto room dimensions grab the casings and show the dimensions how I want. Thank you Chris for taking the time to help solve this. And another shoutout to Brian for digging into this as well! Link to comment Share on other sites More sharing options...
Recommended Posts
Please sign in to comment
You will be able to leave a comment after signing in
Sign In Now