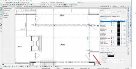
gravattedesign Posted 2 hours ago Share Posted 2 hours ago I have recently installed X16 Premier on a new windows 11 computer. When an Object is selected, the layer is not highlighted in the Active Layer Display Options sidebar. Does anyone know where this setting is to turn it back on? Help Menu search doesn't appear to have content on this subject. Pic shows a "Walls, Normal" object selected... Link to comment Share on other sites More sharing options...
ChiefTylerL Posted 1 hour ago Share Posted 1 hour ago Hello @gravattedesign, The Active Layer Display Options has a few options for it, one of those being "Show All Layers". When Show All Layers is enabled you will not get the filtering that you're used to. This can be controlled by clicking on the small gear icon at the bottom of the Active Layer Display Options and unchecking Show All Layers. I hope this helps! Link to comment Share on other sites More sharing options...
Recommended Posts
Please sign in to comment
You will be able to leave a comment after signing in
Sign In Now