Main Floor Plan


Chris_Boswell
 Share


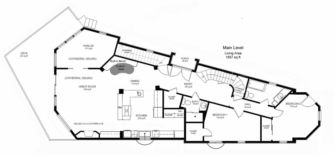
I designed this house to maximize living area within a very tight building envelope on a steep pie-shaped lot.


From the album:

Villa Boswell

  • 20 images
  • 0 comments
  • 2 image comments

Photo Information for Main Floor Plan

 Share


Recommended Comments

Please sign in to comment

You will be able to leave a comment after signing in



Sign In Now