Ground Floor Plan
 
Credit Hitech CADD Services

hitechcadd
 Share


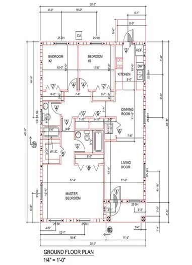
Detailed floor plans show the layout of rooms, complete with dimensions and installation of features. They help convey how space is efficiently used within the rooms.

Credit

Hitech CADD Services
From the album:

Architectural BIM

  • 3 images
  • 0 comments
  • 0 image comments

 Share


Recommended Comments

There are no comments to display.

Please sign in to comment

You will be able to leave a comment after signing in



Sign In Now