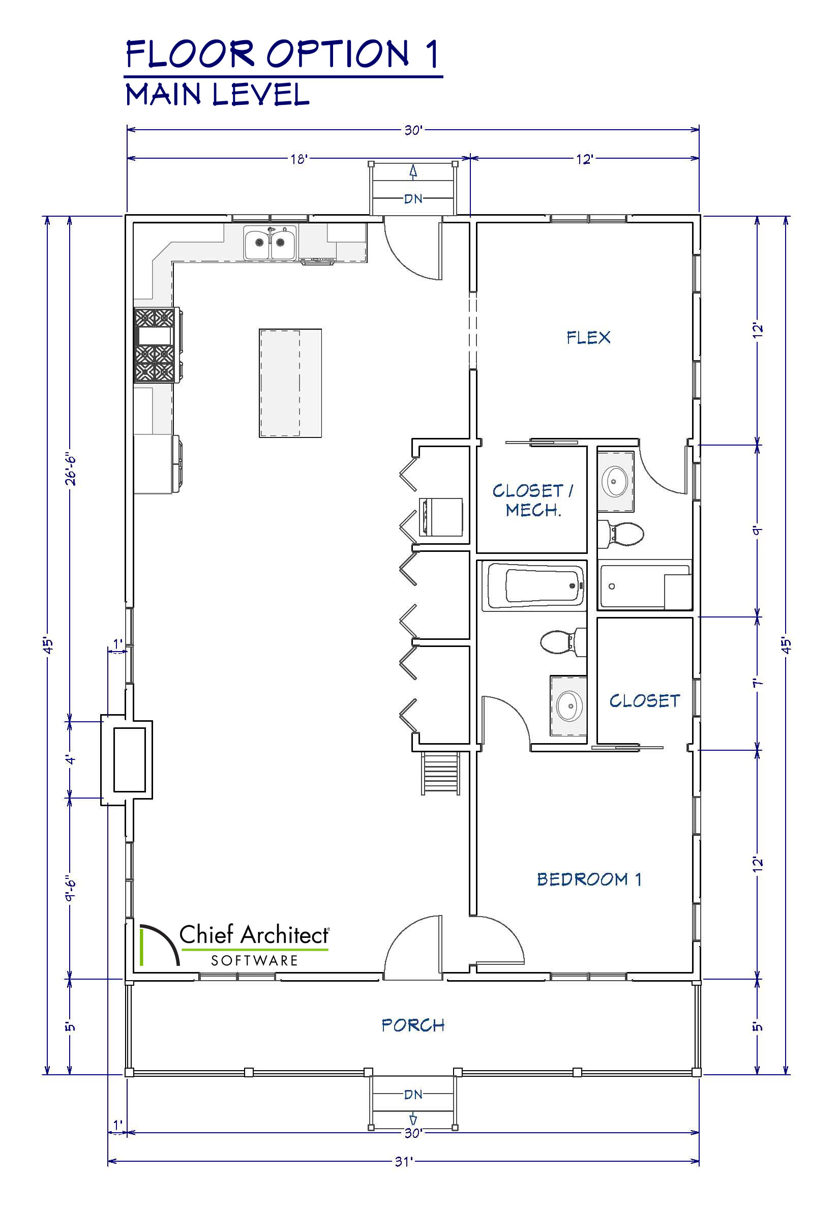
1 Option 1 - Floorplan
Option 1 is the smallest and most simplified floor plan variation. Coming in right at 1,200 square feet, an open living space flows through 1/2 of the structure, a feature typical to all the plan options. Also included are two baths, a front porch.
Variations to the plan are available with choices on fireplace vs. gas insert, flex room use, and depending on the style's roof line, a possible storage or loft space over the bathroom areas.

Recommended Comments
There are no comments to display.
Please sign in to comment
You will be able to leave a comment after signing in
Sign In Now